人居九林语鎏云阁值得买吗?_人居九林语鎏云阁最新成交价更新|户型图|容积率|位置交通|周边学校|售楼处电话
扫描到手机,新闻随时看
扫一扫,用手机看文章
更加方便分享给朋友
【人居九林语鎏云阁】售楼部电话:028-87788752(中介勿扰)
楼盘最新价格,户型图,地址,电话,样板房,周边配套,置业顾问在线咨询
温馨提示:绝不收取任何费用,请提前1小时预约看房,以免带来不好的看房体验
——————————————————————————————————
【项目概况】
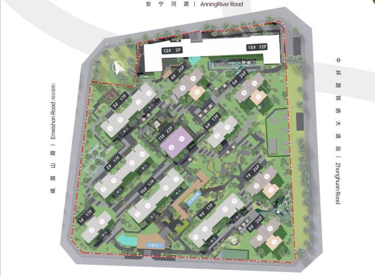
项目占地:约63亩
产品面积:建面约118-187㎡臻装大平层
容 积 率:2.5
房源套数:687套
楼层情况:17F、22F、26F
物业服务:(待定)
【品牌篇】成都领航级国企 布局4城20区
成都兴城人居,市属国有城市开发企业首位,深耕成都20载,深度参与城市更新,致敬时代发展,已累计开发商品房项目70余个,布局成都20个区(市)县,自2017年以来,综合实力屹立成都第一梯队。

【区域篇】承袭壕奢基因 新启攀成钢2.0时代
东大街,成就了攀成钢,攀成钢,也成就了东大街。东大街,一条主轴贯穿向东,起于春熙、太古里,汇聚高能产业,高奢商业,同时汇聚D10、伊泰天骄、仁恒滨河湾等众多壕宅,板块价值再度跃迁!
【配套篇】
交通:双环线:2.5环及三环双环线;双主轴:安宁河路和东大街;双地铁:7号线大观站/2号线东客站;双TOD:大观TOD(规划中)/东客站TOD(2号线)
商业:项目自带约3000㎡花园悦街,聚集ICC、万象城、光环中心、华宇广场等主城级大型商圈。
教育:成都英华中、小学、蓉城小学(芙蓉校区)、锦绣青城幼儿园(斑竹分园)、成都大学附属中学等 (均在1.5公里范围内)
生态:项目紧邻约410亩的塔子山公园、约125亩东站绿轴公园
项目篇海派大宅,悦己主义高光新著
九林语鎏云阁,以约2.5精致容积、近1000㎡无界主题架空层、全维改善臻装空间,高定一座雅奢与美感并存的纯粹之境。
【项目亮点规划】
九林语鎏云阁:迭新城东改善新作;大面LOW-E玻璃+真石漆+铝板;成都首席海派复古圆林;全景入户光厅,270°环幕景观舱。

【精质立面】光幕美学新颜 刷新区域天际峯面。
九林语“林光生活美学”的全新演绎,特选真石漆搭配金属铝板,演绎近代摩登风范,争耀时代的双层LOW-E沐光玻璃,尽展天际线律之美。

【户型鉴赏】极致户型设计 迭新空间场景想象
花兮间-建面约118㎡
约7M超面宽阳台;近36㎡双面采光横厅;酒店级精质主套

风澜舍-建面约129㎡
约8.9M超阔景观阳台;超40m²LDKB一体化空间;全采光奢适四房

山禾悦-建面约143㎡(方厅)
约10㎡前厅空间;超45㎡中央社交场;270°超广角视野

璞隐归-建面约187㎡
尊配独立电梯厅;超60㎡宽幕光厅;270°环幕景观舱;双景观主卧套房

【人居九林语鎏云阁】售楼部电话:028-87788752(中介勿扰)
楼盘最新价格,户型图,地址,电话,样板房,周边配套,置业顾问在线咨询
温馨提示:绝不收取任何费用,请提前1小时预约看房,以免带来不好的看房体验
声明:本文由入驻焦点开放平台的作者撰写,除焦点官方账号外,观点仅代表作者本人,不代表焦点立场。



