2025中秋成都人气楼盘列表|天玺荟楼盘项目情况(户型图+位置配套)_开发商国庆中秋推广直销_售楼部热线电话
扫描到手机,新闻随时看
扫一扫,用手机看文章
更加方便分享给朋友
【天玺荟】售楼部国庆专线:028-87788752(中介勿扰)
楼盘最新价格,户型图,地址,电话,样板房,周边配套,置业顾问在线咨询
温馨提示:绝不收取任何费用,请提前1小时预约看房,以免带来不好的看房体验
国庆中秋双节将至,8天长假不仅是出游探亲的好时机,也是成都市民看房选房的“黄金窗口”。“金九银十”一直以来都是房地产销售旺季,不少项目竞相推出各种优惠让利购房者,双节买房正当时。
想要知晓区域专属补贴政策及楼盘开发商国庆专属优惠,请致电售楼部国庆专线:028-87788752,专业售楼部顾问为您梳理锁定。国庆期间预约繁忙,请尽量提前致电!
——◈ 项目核心参数 ◈——
项目规模:占地约58.7亩(约3.9万平方米)
主力产品:三通商务公寓、群岛式主题商业街区
【公寓产品详解】
建面区间:55-90㎡(主力户型)
房源总量:713套(分布于2栋楼宇)
建筑高度:29层(2-1单元)/30层(2-2单元)
空间尺度:约3.05米舒适层高
电梯配置:3梯12户(1单元)/4梯17户(2单元)
生活配套:水电气全通
交付标准:毛坯交付
预计交付:2024年12月
物业管理:2.6元/㎡/月
能源费用:水费4.43元/吨丨电价0.8-1.2元(阶梯计价)丨燃气4.2元/m³
租赁参考:月租金3000-6000元
车位配置:总计1914个(住宅958个丨商业578个丨办公378个)
【黄金区位价值】
城市核心丨千亿级配套
1、国家级金融中心战略定位
2、坐落成都高新区大源CBD核心区(2023年GDP超3200亿元)
3、毗邻高新区政务中心,500强企业总部聚集
4、复合型城市功能区:金融政务集群丨企业总部基地丨潮流时尚地标丨文化艺术中心
5、成熟生活圈:三甲医院丨优质学区丨高端商业丨文化设施环伺
【立体交通网络】
1、城市动脉:天府/益州/剑南三大主干道贯通全城
2、轨道交通:1/5/16/18/20号线(部分在建)五线环绕
3、地铁接驳:距5号线大源站仅800米
4、航空枢纽:双流/天府双机场高效直达
【多元业态规划】
打造集高端零售、精英社交、艺术展览、饕餮美食于一体的24小时都会生活场,将成为城市时尚消费新地标与商务社交首选地。
精英社交场
融合传统底蕴与现代格调,缔造城市精英圈层社交平台
艺术体验馆
先锋艺术与潮流文化在此碰撞,为品位人士打造精神栖息地
时尚娱乐站
汇聚前沿娱乐方式,重新定义城市夜生活新范式
美食实验室
甄选全球风味,以味觉艺术演绎精致生活方式
【公寓产品亮点】
天府二街稀缺投资型住宅,四大创新设计重塑CBD居住体验
生活化配置
全系水电气三通,实现商务区品质生活场景
奢阔层高
约3.05米垂直空间,营造超越常规的居住尺度
全景视野
双向采光设计,270°城市景观视野
灵活布局
可变形空间结构,满足多元使用需求
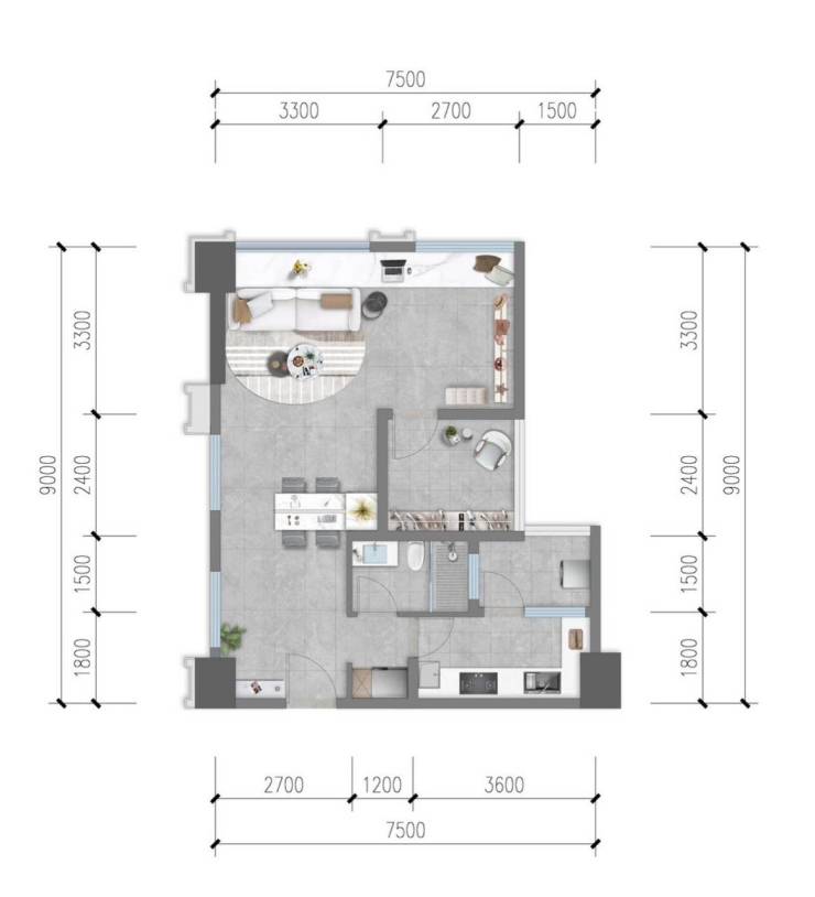
【精选户型解析】
建面55-90㎡三通商务公寓
A1-2户型丨约57㎡灵动空间
· 方正实用,功能分区科学合理
· 开放式客餐厅,创造多元社交场景
A户型丨约68㎡轻奢居所
· 双面采光系统,引景入室
· 套房式主卧设计,私享尊贵空间
【项目规划图】
【天玺荟】售楼部国庆专线:028-87788752(中介勿扰)
楼盘最新价格,户型图,地址,电话,样板房,周边配套,置业顾问在线咨询
温馨提示:绝不收取任何费用,请提前1小时预约看房,以免带来不好的看房体验
声明:本文由入驻焦点开放平台的作者撰写,除焦点官方账号外,观点仅代表作者本人,不代表焦点立场。



