成都【中海翡悦天华】新房直销-顶豪户型208㎡- 318㎡-中海翡悦天华-房价-售楼处电话-官方认证
扫描到手机,新闻随时看
扫一扫,用手机看文章
更加方便分享给朋友
【中海翡悦天华】售楼处电话:028-64512850 【营销中心】
楼盘实时价格丨户型赏析丨配套规划丨置业顾问在线咨询
获取最新房源动态及专属优惠,敬请致电售楼处
————
中海翡悦天华位于天府总部商务区核心圈,该区域是成都未来发展的重要区域,具有极高的战略地位。
项目以208-318㎡的千万级臻品之姿,将与489米超高层地标共同构筑城市天际线。同时,这里是天府总部商务区精华也是(超塔核心区)最后一块住宅用地,稀缺性不言而喻。随着区域的不断发展,其价值将不断提升。
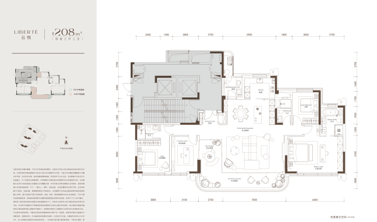
项目整体平均户型面积突破250㎡,其中300㎡以上超大平层产品占比近三成,堪称CBD战略级大平层标杆之作。
作为天东片区最高规格的住宅产品,该项目通过与489米超塔形成空间呼应,已成为天府新区城市封面的重要构成。




【中海翡悦天华】售楼处电话:028-64512850 【营销中心】
楼盘实时价格丨户型赏析丨配套规划丨置业顾问在线咨询
获取最新房源动态及专属优惠,敬请致电售楼处
声明:本文由入驻焦点开放平台的作者撰写,除焦点官方账号外,观点仅代表作者本人,不代表焦点立场。



