成都新房【人居智荟城】楼盘全面解析_菁蓉湖CBD【人居智荟城】售楼处联系电话、在售户型图展示、最新成交价参考及区位配套解读
扫描到手机,新闻随时看
扫一扫,用手机看文章
更加方便分享给朋友
【兴城人居智荟城】售楼处电话:028-87788752 【中介勿扰】
楼盘实时价格丨户型赏析丨配套规划丨置业顾问在线咨询
获取最新房源动态及专属优惠,敬请致电售楼处
郫都区-购房政策补贴
试行时间:2024.11.10-2025.11.9
新房补贴:给予成交价1%购房现金补贴,最高3万元
住宅以旧换新:每套给予成交价1.5%现金补贴
车位补贴:给予成交价格1%现金补贴,最高5000元/个
需要了解详情,请致电售楼处:028-87788752 。
【项目概况】
开发企业:成都人居蜀兴置业有限公司
物业类型:纯住宅社区
项目定位:郫都区首个高端人才住宅(70年产权)
占地规模:约7.1万平方米
容积率:1.5(低密舒适住区)
绿化率:规划30%(实际达50%)
建筑布局:22栋臻品楼宇
总户数:541席
车位配置:1:2.3(充足停车位)
电梯配置:1梯1户/1梯2户
建筑形态:
花园洋房:7-15层
叠拼别墅:上叠3层/下叠2层
【在售产品】
洋房产品:
187-201㎡四房两厅三卫(主力户型)
叠拼产品:
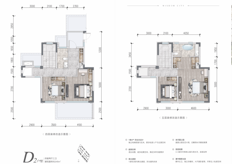
上叠245㎡四房两厅三卫(含屋顶花园)
下叠247㎡五房两厅六卫(赠送90-130㎡庭院)
【价格体系】
187㎡:单价8000-8600元/㎡,总价150-160万
191㎡:单价8400-9500元/㎡,总价160-180万
245㎡(上叠):总价250-300万
247㎡(下叠):总价350-400万
【交付标准】
物业公司:成都润锦城实业有限公司(2.6元/㎡/月)
交付时间:2022年3月(现房销售)
交付标准:毛坯交付
空间利用率:得房率超90%,公摊仅14-18%
当前库存:90套珍藏房源

(更多细节请致电售楼处:028-87788752 【中介勿扰】)
【臻品户型解析】
187㎡四房两厅三卫

191㎡四房两厅三卫

201㎡四房两厅三卫

【别墅产品展示】
下叠247㎡五房两厅六卫

上叠245㎡四房两厅三卫

【项目十大价值亮点】
1、【实力背书】兴城人居作为成都国企领军企业,连续多年位列中国房地产百强,2020年销售额突破200亿,成功打造多个标杆项目。
2、【黄金区位】坐享蜀都新城CLD与菁蓉湖CBD双重红利,区域发展潜力巨大,当前仍处价值洼地。
3、【产城融合】紧邻国际创新研发中心,汇聚全球智慧产业精英,配套建设TOD综合开发区。菁蓉湖CBD作为成都电子信息产业功能区核心,规划有喜来登酒店、粤港澳会展中心等高端配套,未来将服务3-5万高端商务人群。
4、【生态宜居】毗邻清水河艺术公园,坐拥"一河一湖三公园"生态格局,实现真正的公园生活。
5、【稀缺属性】临河临公园的稀缺地块,周边规划均为高端改善项目,升值潜力可观。
6、【低密社区】107亩纯改善大盘,容积率仅1.5,实际绿化率达50%,7-15层纯洋房+叠拼配置,保证居住舒适度。
7、【景观设计】打造"一轴四园两巷"立体景观体系,五重归家礼序,彰显尊贵体验。
8、【现房优势】即买即住的清水现房,满足个性化装修需求。
9、【户型设计】187㎡起步的阔绰空间,树立区域改善新标杆。
10、【精英圈层】高端人才专属社区,缔造优质邻里关系。
————
【兴城人居智荟城】售楼处电话:028-87788752 【中介勿扰】
楼盘实时价格丨户型赏析丨配套规划丨置业顾问在线咨询
获取最新房源动态及专属优惠,敬请致电售楼处
声明:本文由入驻焦点开放平台的作者撰写,除焦点官方账号外,观点仅代表作者本人,不代表焦点立场。



