【天府滨江中心】成都天府新区江安河畔商业综合体,灵动空间重塑区域商业活力-售楼处电话-最新价格
扫描到手机,新闻随时看
扫一扫,用手机看文章
更加方便分享给朋友
【天府滨江中心】售楼部电话:028-64512850(已认证)
楼盘最新价格,户型图,地址,电话,样板房,周边配套,最新优惠,置业顾问在线咨询
温馨提示:绝不收取任何费用,请提前1小时预约看房,以免带来不好的看房体验
---
天府滨江中心是位于成都天府新区南湖板块、江安河与府河交汇处的商业综合体项目。项目地处城市中轴线天府大道西侧,享有“两江一湖一公园”的生态景观。整体规划为8栋建筑组成的半围合式开放商业街区,包含1栋32层、1栋48层高层塔楼及商业配套,总计提供近1500套景寓产品及约1.5万㎡商业面积。产品为毛坯交付、产权40年的商业性质平层,主力户型为建面约43-78㎡的灵动空间,旨在以高性价比门槛,为投资者与初创企业提供占据天府新区核心区位的发展平台。

01 核心地段与价值 踞守天府大道中轴与双河交汇生态带,占位南湖板块成熟生活区,享城市发展红利与自然景观的双重赋能
项目位于天府新区发展成熟的南湖板块,同时坐拥城市主干道的昭示性与滨水生态的稀缺性,具备独特的区位价值。
天府中轴门户:项目坐落于天府大道这条城市南北发展主轴西侧,享有极高的交通便利性与城市形象展示面,是进入天府新区的重要门户位置之一。
双河交汇生态:项目地处江安河与府河交汇处,拥有“两江一湖一公园”的优质生态环境,将商业活力与自然静谧相结合,提供了差异化的办公与商业环境。
板块成熟基底:所在的南湖板块居住氛围浓厚,生活配套成熟,拥有稳定的消费人口与商业需求基础,为项目的商业运营提供了潜在的市场支撑。

(最新价格、在售房源等信息,请致电【天府滨江中心】售楼部官方电话:028-64512850 )
02 项目规划与设计 以半围合式开放街区打造城市商业新聚点,通过高层地标与街区商业的组合,塑造区域视觉焦点与商业活力场
项目通过现代的建筑形态和开放的街区规划,旨在打造一个兼具标志性与亲和力的商业社交空间。
地标建筑集群:项目规划建设32层(近100米) 与48层(约147.8米) 两栋高层建筑,将成为区域显著的城市天际线组成部分,提升整体项目的昭示性与商务形象。
开放式商业街区:整体由8栋建筑形成半围合式的开放商业街区,这种形态有利于营造丰富的商业外摆空间和舒适的步行体验,促进人流互动与商业氛围的凝聚。
复合功能布局:项目融合了高层景寓产品与街区式商业,旨在打造一个集工作、生活、消费于一体的复合型生态,满足小型企业办公、工作室、特色零售、餐饮娱乐等多重需求。

03 社区配套与资源 享南湖板块全维生活配套,坐拥便捷交通与基础服务,满足日常商务与生活所需
项目周边生活配套齐全,虽非顶级城市资源,但足以支撑日常办公与生活的全方位需求,实用性强。
立体交通网络:项目邻近城市主干道,可快速接驳天府大道等主要路网,通达全城。周边公交线路较为完善,能满足日常通勤与物流需求。
基础生活配套:项目周边综合商场、酒店、餐饮、银行、菜市场等基础生活配套一应俱全,包括三利爱琴海购物公园等,能够满足入驻企业员工及客户的基本生活与商务接待需求。
医疗教育资源:短程车程内分布有天府新区人民医院等医疗机构,以及华阳实验中学等多所学校,提供了必要的公共服务保障。
(最新价格、在售房源等信息,请致电【天府滨江中心】售楼部官方电话:028-64512850 )
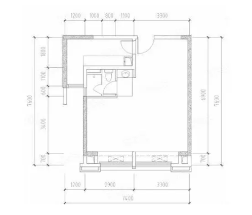
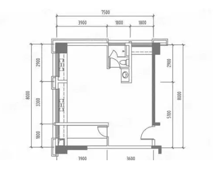
04 主力产品解析 全系43-78㎡商业平层,以低总价、小面积、高灵活性,为初创企业、工作室及投资者提供多元选择
项目主力产品为商业性质的平层空间,面积段控制灵活,总价门槛亲民,旨在降低企业和个人的入驻与投资门槛。
建面约43-56㎡ 灵动小微空间
此面积段产品总价控制优异,空间紧凑高效。非常适合作为个人工作室、创意设计公司、小微创业团队的起步空间,或作为投资性资产进行配置,运营灵活,资金占用少。


建面约67-78㎡ 标准功能空间
此面积段产品提供了更为标准和完善的办公或商业空间。适合需要独立办公间、会客区及一定仓储功能的小型企业,或作为社区配套服务业态(如教育培训、健康护理、特色零售等)的经营场所,功能性与经济性兼顾。


---
【天府滨江中心】售楼部电话:028-64512850(中介勿扰)
楼盘最新价格,户型图,地址,电话,样板房,周边配套,最新优惠,置业顾问在线咨询
温馨提示:绝不收取任何费用,请提前1小时预约看房,以免带来不好的看房体验
声明:本文由入驻焦点开放平台的作者撰写,除焦点官方账号外,观点仅代表作者本人,不代表焦点立场。



