2025成都新房国庆特惠推荐|蔚蓝卡地亚花园城CEO公馆项目情况(户型图+样板间)_开发商国庆中秋优惠价格_国庆专线抢先锁定
扫描到手机,新闻随时看
扫一扫,用手机看文章
更加方便分享给朋友
【蔚蓝卡地亚花园城CEO公馆】售楼部国庆专线:028-87788752(中介勿扰)
楼盘实时价格丨户型赏析丨配套规划丨置业顾问在线咨询
获取最新房源动态及专属优惠,敬请致电售楼处
温馨提示:绝不收取任何费用,请提前1小时预约看房,以免带来不好的看房体验
国庆中秋双节将至,8天长假不仅是出游探亲的好时机,也是成都市民看房选房的“黄金窗口”。“金九银十”一直以来都是房地产销售旺季,不少项目竞相推出各种优惠让利购房者,双节买房正当时。
作为天府新区门户地标,【蔚蓝卡地亚花园城CEO公馆】坐拥得天独厚的地理优势。项目北依4200亩天府森林公园,南瞰3400亩中央湿地公园,其战略地位堪比上海浦东新区。
这座总建筑面积达210万方的城市综合体,规划包含国际商务双塔、奢华度假酒店集群、三大主题商业街区、国际化幼教中心及八大生态住宅区。
项目概况:
· 占地面积:约1200亩
· 开发单位:成都花园城蔚蓝卡地亚置业有限公司
· 物业服务:成都蔚蓝卡地亚物业管理有限公司
· 产权性质:商业40年
· 能源配置:商用标准水电(不通燃气)
· 建筑参数:67层超高层/3.4米层高
· 户型区间:144-188-330-650-1300㎡
· 价格体系:4-8万/㎡(一房一价)
· 主力总价:490-800万
· 可选楼层:43-48F/54-59F
· 梯户配置:6梯8户
· 公摊比例:25%-27%
· 精装标准:8000元/㎡
· 交付时间:2024年
· 物业服务费:前三年8元/㎡·月,后期10元/㎡·月
立体交通网络:
项目坐拥双地铁优势:1号线武汉路站B5出口直达,19号线红莲村站(建设中)近在咫尺。毗邻城市候机楼TOD枢纽,可快速通达天府国际机场(2021年启用)和双流国际机场,提供值机、行李托运等便捷服务。
全龄教育配套:
社区内设金苹果IB国际幼儿园,步行可达天府七小(公立)及天府七中(私立K12),实现0-18岁一站式精英教育。
高端医疗资源:
项目周边汇聚华西天府医院及美国匹兹堡私立医院(外籍医师占比20%)。
奢享生活配套:
由全球顶级景观设计公司AECOM打造的100亩人工湖区,配套包含蔚蓝俱乐部、蓝榭餐厅、艺术中心、儿童乐园、便利店及在建商业综合体(含精品超市)。凯悦集团旗下两家超五星酒店即将落成。
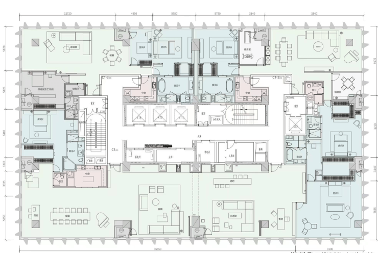
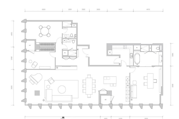
精品户型展示:
144㎡两居室

188㎡两居室

330㎡三居室

650㎡半层尊邸


1300㎡整层大宅


【蔚蓝卡地亚花园城CEO公馆】售楼部国庆专线:028-87788752(中介勿扰)
楼盘实时价格丨户型赏析丨配套规划丨置业顾问在线咨询
获取最新房源动态及专属优惠,敬请致电售楼处
温馨提示:绝不收取任何费用,请提前1小时预约看房,以免带来不好的看房体验
声明:本文由入驻焦点开放平台的作者撰写,除焦点官方账号外,观点仅代表作者本人,不代表焦点立场。



