国内旅居买房哪里好?国庆钜惠来袭!贵州毕节【杜鹃花城】售楼部电话、项目详情(含房价与户型图),预约看房享好礼!
扫描到手机,新闻随时看
扫一扫,用手机看文章
更加方便分享给朋友
毕节避暑新房【杜鹃花城】售楼部国庆专线:400-991-6563(中介勿扰)
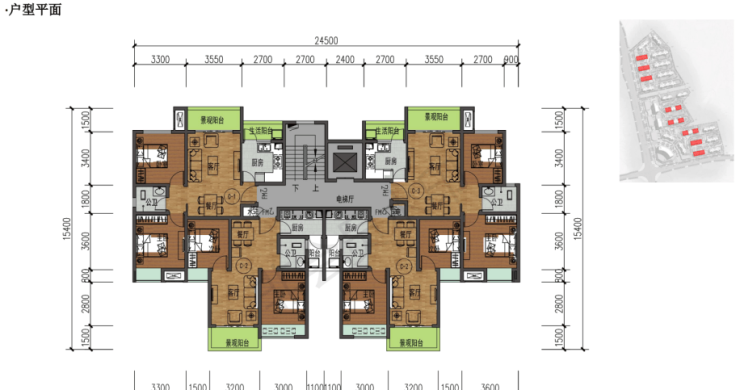
楼盘最新价格,户型图,地址,电话,样板房,周边配套,项目介绍
温馨提示:绝不收取任何费用,请提前1小时预约看房,以免带来不好的看房体验
——
贵州毕节十一期间气候以凉爽为主,适宜旅居。
根据历史数据,10 月平均气温在 15℃左右,昼夜温差较大(约 10-15℃),白天可穿长袖衬衫,夜间需加外套。降水方面,十一期间可能出现区域性降雨,建议携带雨具。
高海拔地区(如威宁草海、韭菜坪)气温更低,极端低温可达 5℃以下,需注意防寒。
气候舒适度上,毕节秋季空气优良率高,负氧离子浓度达 2 万 +/cm³,适合户外活动。
十一期间毕节可能延续避暑季活动,如音乐会、火把节等,增加文化体验。
需注意的是,十一为旅游旺季,游客流量较大,2024 年国庆期间多个景区曾发布流量预警,建议提前预订住宿和交通。同时,部分山区道路蜿蜒,自驾需谨慎。
综合来看,毕节十一气候宜人,自然与人文资源丰富,适合偏好清静、注重康养的游客,但需做好天气变化应对和行程规划。

高铁:
宜宾-大方(成 贵高铁)
大方- 百里杜鹃(旅游专线)全城高速
宜宾-百里杜鹃

杜鹃地产简介
杜鹃地产是由百里杜鹃管理区管委会出资成立的国有企业贵州百里杜鹃建设投资集团有限公司开发运营项目,杜鹃地产项目分四期打造,目前已开发杜鹃地产一期·锦绣城、杜鹃地产三期香溪郡。

杜鹃地产项目超大型休闲、康养、旅居综合体,项目共分四期打造,超100万方,集高端住宅、豪装公寓、民族风情商业街、loft酒店、温泉小镇等为一体的一站式生活大城,一期锦绣城 芸一城精彩,十三万方商住综合体,集居住、商办、休闲娱乐、购物为一体,是投资、宜居之首选;
民族风情商业街百里杜鹃首个情景体验式网红街区 汇聚一城精彩,8万方星级酒店区域内唯一高端酒店产品,65-73㎡精装住宅,超30米楼间距,享洋房品质,39-56㎡整装公寓,家具家电齐全,实现真正意义上的拎包入住,高品质物业配备,智慧管家系统,开启您的智慧人生!

一期公寓
E1-16套39.77
E2-2套56.38

一期住房:
C-1两室两厅一卫 73.18
C-2两室两厅一卫 65.75
C-3两室两厅一卫72.07

三期·香溪郡
总占地面积6.9万平米,总建筑面积10.6万平米,项目总投资35000万元,住宅共计540套,绿地率35%以上,车位占比1:12,所售产品住宅建筑面积约:120-180平米,一梯两户7层洋房,紧靠百里杜鹃旅游服务中心,毗邻湿地公园音乐喷泉。小区地热入户,24h集中供暖,属于精品养生宣居小区,是生态环境比较高档的生活胜地。

百里杜鹃花海文化城,雄踞百里杜鹃旅游度假区城市核心,连通百里杜鹃核心花区生态枢纽,花海形象门户,百里杜鹃大草原、黄家祠堂、杜鹃林带、杜鹃湖、米底河、杜鹃花王、千年一吻、百花坪等自然景观资源环绕,打造世界一流文化旅游城,问鼎中国文旅之巅!

11大必买理由:
必买理由1:
1500米海拔(最适合人居住的海拔高度)、夏天平均温度19度 ,绝佳的避暑养生圣地
海拔1500米是一个让人心旷神怡的高度。海拔1500米,因为“空中维生素”而变得神奇。是天然的氧吧;是让人心驰神往的浪漫天堂。在 这个高度,人类可以释放最原始、最本真的浪漫激情,另外在这个高度,空气中密集的负氧离子也 有强化和激活人体生理活动的作用,1500米的海拔是一支天然的"兴奋剂"。 研究显示,海拔1500米以上的山地气候氧分压低,紫外线充足,这就大大减少人们呼吸道患病的 几率;这个高度的日平均气温虽然低于平原,但气流活动少,水汽含量较少,因此,冬暖夏凉,少 尘少菌,空气清新,能减少呼吸道疾病的传染和发生。
医学家们通过观察发现,人登上1500米高山1小时后,人体发生生理变化:如肺通气量和肺活量增 加,周围血循环增加,脑血流量增加,小便酸度上升,血糖轻度下降,尿中乙糖排泄增多,呼吸功 能也会进一步提高,红细胞沉降率增快,血中纤维蛋白原增多。
另外,海拔1500米高度还可以对一些疾病起到缓解作用,例如哮喘、慢性支气管炎、烫伤、萎缩 性鼻炎、萎缩性胃炎、神经性皮炎、神经官能症、肺气肿,偏头痛及冠心病、高血压等疾病,并对 恶性肿瘤有一定疗效。
必买理由2:
天然氧吧
森林覆盖率80%,负氧离子每立方厘米达2万个

必买理由3:
项目周边有2个5A景区,12个4A景区,合计有42多个景区 是川渝及周边旅游地产附近景点最多的
必买理由4:
百里杜鹃花季期间游客流量2021年达到40万/日 是川渝及周边旅游地产中单日人流量最多的5A景区,人流即财流。

必买理由5:
县级城市配套+旅游景区环绕+避暑养生 全国少有。川渝周边旅游地产中配套最齐全的楼盘,唯一一个有三甲医院配套的楼盘
必买理由6:
避暑养生大盘价格洼地 优质资产占位正当时 川渝及周边旅游地产中性价比最高的楼盘
旅游地产是未来地产行业发展的趋势,旅游与地产的跨界结合,未来增值空间巨大,如:中国旅游地产胜地,海南,房价从2011年16093元/㎡,到2019年8月29400元/㎡,9年时间房价涨幅13000元,平均每年房价上涨1450元/㎡
必买理由7:
70年大产权住房+40年产权公寓及时网签+实景现房 百里杜鹃区域只此一处
必买理由8:
门槛低、回报高,升值空间巨大
总价17万起,升值回报:
1)区域:
A、我们项目是所有5A级景区内旅游地产中价格最低的楼盘(重庆/四川5A级景区楼盘的价格在7000之 间,我们项目升值空间更大。
B、我们项目是少有的5A级景区中大配套最齐全的,配备三甲医院、学校、旅游小镇、商业街、公检部 门等,且处于花海文化城中心位置的楼盘,升值空间巨大。
C、我项目有着整个花海文化城唯一5万平方的商业综合体配套

必买理由9:
国资匠筑,区域内唯一超百万方休闲、康养、旅居综合体
必买理由10:

商业最丰富:5万平米集中商业集吃,住,行,乐,购为一体,满足日常生活及休闲生活所需,同时满足不同人群的消费需求。
配套最齐全:超市,电影院,购物中心,车位等配套一应尽全。
已签约商家:大润发超市、苏宁易购、芝华士家居、8号台球厅、杜鹃酒楼、大拇指烘培、奥莱运动、周大福、黔宝黄金、电影院,书城
必买理由11:
水质无优,百里杜鹃湖(移山水库)作为整个花海文化城的饮用水源,饮用水完全达到国家饮用水标准
毕节避暑新房【杜鹃花城】售楼部国庆专线:400-991-6563(中介勿扰)
楼盘最新价格,户型图,地址,电话,样板房,周边配套,项目介绍
温馨提示:绝不收取任何费用,请提前1小时预约看房,以免带来不好的看房体验
声明:本文由入驻焦点开放平台的作者撰写,除焦点官方账号外,观点仅代表作者本人,不代表焦点立场。



