成都【空港发展云玺观宸】售楼处首页_最新房价【空港发展云玺观宸】售楼处电话_地址_户型图_楼盘详情
扫描到手机,新闻随时看
扫一扫,用手机看文章
更加方便分享给朋友
成都【空港发展云玺观宸】销售中心电话:028-87788752(中介勿扰)
售楼处价格,户型图,地址,电话,样板房,周边配套,项目介绍
温馨提示:绝不收取任何费用,请提前1小时预约看房,以免带来不好的看房体验
------------------------------------
?空港发展·云玺观宸?
空港发展-怡心湖登峯之作
空港发展“云玺系”首发 城市湖居奢藏
一湖七园生态高地 领潮怡心享湖时代
5/19/22号线三轨环绕,双机场中心点
超宽楼间距 纯品质改善 无界景观视野
建面约141-199㎡套四、套五 T1、T2纯板式宽幕洋房
中国·成都·国际怡心湖

空港发展|城市综合运营商 成立于2008年。17年来始终以“引导航空经济产业发展壮大,推动航空经济之都建设升级”为使命要求,以“产业投资、载体建设、资产运营”为主 要抓手,形成“一个核心、九大支柱”的“1+9”业务布局体系。按照区委区政府安排部署,聚焦开展工程建设、地产经营、城市运营、口岸经济、公共交通服务、医疗健康等业务,致力于成为高品质、专业化的城市综合运营商。空港置业|世界空港的人居理想以“匠心营城,幸福生活”为宗旨,专注品质住宅开发,打造“云”系五大产品线,总开发16个项目、总投资约234亿。依托国企实力保障安全交付,前瞻布局教育商业交通配套,助力购房者安享当下与未来城市红利,超1300家庭信赖之选。
▋空港发展-云玺观宸-迭新怡心湖奢享生活项目定位空港发展集团峯级产品系——云玺系,占位怡心湖高端居住区,将打造成为城南具有代表性的高端城市度假型社区。
▋项目基础信息: 占地面积:约79亩建筑面积:约10.6万㎡ 容积率:2.0 建筑密度:<20% 绿地率:35% 梯户比:1T1、2T2车位数:1276个楼栋数:22栋 11-17层总户数:675户产品面积段:建面约141、168、199㎡


▋ 天府怡心 城南宜业宜居改善高地成都向南,国际城南稳居GDP榜首,是繁华与活力的黄金地带。然而,金融城与天府CBD的高门槛让许多人望而却步。城南产业与人居板块分隔明显:金融城、大源、新川以产业为主;麓湖、锦江生态带以人居为主;而怡心湖则兼具产业、湖景资源与城市配套,满足职住平衡与改善需求,成为城南宜居新高地。
天府大道剑南大道双轴驱动:天府大道串联金融城与天府CBD,剑南大道贯穿锦城湖、大源、怡心湖,塑造高端居住属性。怡心湖位居城南黄金三角,衔接高新区与天府新区,双机场、高铁站环绕,资源聚核,是双流未来十年重点打造的核心板块。
天府怡心湖 产城湖3.0模式:较锦城湖产业规划更合理,较兴隆湖生活配套更完善。湖居生活与都市繁华完美融合,产业蓬勃、出行便捷,新兴业态蓄势待发,尽享新一代湖居生活。
以滨海湾为蓝本 高起点蓝图 :以“六位一体”打造产城融合新典范,汇聚高新、天新、双流三区红利,跃升区域发展与人居价值。从区域规划看,怡心湖由欧洲知名建筑公司阿特金斯设计,串联怡心湖与公兴湖,形成峡谷式生态建筑系统,规划ABCD四大定位鲜明区域:A区活力运动生活区(项目所在)B区滨湖综合商务区湖C区数字科创生态区D区精致商贸领秀区其“3+3+N”产业体系中,包含了N项完善的生活服务:教育、医疗、餐饮、购物、娱乐、文化、休闲、度假、健身、体育、居住等元素。将城市繁华与自然生活完美结合。
项目位于片区功能齐全、近湖区的住宅核芯地段,择居云玺观宸,畅享高能级资源与完备配套

▋“7”字规划之首 享醇熟星级配套 ▍交通-多维路网 通达全城项目距双流机场约10km,距天府机场约45km,板块上承华府城市生活功能区,下启天府国际生物城和新津,西接双流航空港,东连天府新区、东部新区天府航空港。周边拥有着庞大而便捷的立体交通网络,机场轨道相互串联交替,“四横三纵三地铁”的立体交通路网可快捷通达全城和两机场。三横:牧华路、双兴大道、正公路;四纵:剑南大道、华府大道、物联大道、京昆高速 ;三地铁:5号线(已通车)、19号线(已通车)、22号线(规划来源于《成都市城市轨道交通第五期建设规划(2024-2029年)》)▍商业-高阶商圈 万象繁华项目3km内众享醇熟商圈,紧邻商业邻里中心(规划中),湖区内万科梦想城、西南首家日航酒店、银泰INpark、蔚蓝湖滨艺术中心、湖滨商业街、全球十大酒店管理集团旗下阿丽拉+凯悦尚萃双国际五星级酒店等配套,以及建设中的空港怡心城,未来商业体量或将超80万方。


▍医院-三甲医院护航健康生活云玺观宸的医疗配套非常完善,已建成使用最近的三甲医院——天府新区成都市第七人民医院,行车距离约3.1公里。除此还有四川省人民医院(天府新区院区)、华西医院天府分院、京东方医院、英慈万达国际医院等。在项目附近约 2KM 的位置,空港发展集团还贴心规划建设了怡心颐养院项目,计划打造为集康养 、护理 、日间照护 、健康管理 、社区养老为一体的综合养老服务机构,预计在 2025 年 6 月交付使用。
▍教育-学府云集 K12教育地块在侧双流是成都唯一实现 15 年义务教育的区域,周边教育资源极其丰富,包括:金苹果幼儿园 、怡心湖第一/五/六/七幼儿园以及项目北侧 幼儿园(规划中);项目南侧的树德中学怡心湖学校(公办九年制),由成都树德中学领办,与双流区人民政府合作创建,建设总投资金额约 11.8 亿 ,将于 2025 年 9 月开校 。
▍产业-约780亿产业配套集群怡心湖汇聚京东方、广东半导体等5家世界科技百强企业,以及电子科大产业园、移动数据中心等百余家高精尖产业,总投资超千亿。强产业带来人口导入与配套升级,空港发展作为城市综合运营商,主导板块未来。
▋ 一湖七园绿镜环伺 启幕国际滨湖生活约12000亩水韵怡心 一湖七公园:区域内的湖泊、水系、湿地、绿地联系起来,共同构建起“一湖七公园”的生态自然景观,板块内规划有华府公园、怡心湖主湖区公园、云熙公园、A区生态公园、跌水公园、糖果公园、四季公园等七大公园串联。
▋ 占位景观资源之芯 坐拥千亩生态绿境项目临两大生态公园
【云熙公园】总占地面积约12.8万㎡,功能涉及综合绿道、运动空间、休闲广场、综合商业等,景观规划以数字云 x 商业、未来公园 x 未来社区为理念,展现公园城市与公园社区“互联、互通、无界”的生态融合。公园定位区域核心景观廊道,预计2024年6月呈现。
【A区湿地公园】公园总占地面积约17万㎡,以“休闲漫步区”、“湖畔运动区”、“水岸乐活区”、“艺术地形区”四个区域进行组成,并有怡飞大道划分为南北两区,北区规划休闲运动、户外营地为主要功能;南区以亲子乐园、艺术景观为主要功能,南北区通过环湖步道及栈桥相连接。

▋ 隐奢之境 低密纯改观湖居所空港峯级产品云玺系:约79亩2.0容积率低密大盘A区珍藏级观湖地块:临湖美宅,推窗即享湖光 高定生活梯户比:1T1/2T2独立入户光厅中式隐奢社区范本:双入户大堂×下沉式会所×内外双园×地下光厅×名石名木
▋ 约1000㎡环绕式下沉生活会所下沉生活会所打造灵动静面水景,景观秘境里,千年东方造园哲思化作“守望乌桕"、"一池三山"、"四水归堂"的雅集景象。视觉大开大合同时又富有变化,结合高差营造的水帘瀑布落入水池中,飞瀑叠泉,归家即度假,同时会所具备健身、会客、品茗、儿童游乐等功能,为峯层人士定制的高阶生活方式。

▋ 一环一链两轴四院 串联全龄生活空间园区以“一环两轴万园四院”的空间布局,通过多个功能空间融入整体打造全龄覆盖活动空间,从使用者的角度出发,创造一个空间合理、尺度适宜,具有生活温度的社区。
【一环——健康悦动生活环】园区内设置约1000米主题跑道,串联起热身区、起跑区、健身区等多个元素,满足不同年龄段、不同维度的健康运动需求。
【一链——理想湖居生活链】从怡心湖中汲取灵感, 提取出五重湖居体验:溪、湖、 林、 岛、 瀑;七大生活场景:品质会客、沐浴阳光、泮水休闲、聚会交友、森林漫步、亲子游乐、 浮桥观景的理想湖居元素,融入场地设计
【两轴——四季礼遇归家轴】▍约50m奢阔酒店式归家轴①酒店式落客水景②精选迎宾植被树阵③门楼与两侧景墙结合,营造约50m超尺度界面▍约50m自然沐林归家轴南入口以建筑景观一体化的尊享界面呈现,采用对称式设计手法,体现庄重的整体形象。

【四院——富氧私属院落】▍约500㎡泡泡花园 ▍约700㎡阅读花园 ▍约750㎡氧气花园 ▍约350㎡山丘乐园


▋空港物业 以恒世匠心温暖人生里程▍国企背书·全业态服务专家空港发展集团全资子公司,覆盖住宅/商办/城市公园/国际赛事服务▍24H星级服务体系"四保一服务"黄金标准:智慧安防×环境养护×工程响应×管家服务×社群运营▍16大增值场景赋能居家服务/运动健康/商超优享/休闲社交四大模块,打造「满意+惊喜」温度社区▍8大极致基础服务体系·7项物管基本内容 ·9项消防系统内容 ·25项工程巡查内容·7项绿化养护内容·11项安防系统内容 ·8项公共秩序内容·1项电梯运行内容 ·10项日常保洁内容▍六大温暖工程服务零打扰服务:水箱清洗、线路维修等工作安排晚上0点后开展入户三必有:入户维修时,需向业主问好,入业主家须戴鞋套物业开放日:每半年向业主展示物业服务后台,由业主亲临各类设备房入户维修师:当业主家里有急修,及时响应并帮业主解决问题生活助手: 为业主提供交付后的维修跟进服务环境美容师:配合项目经理为园区做节日布置服务
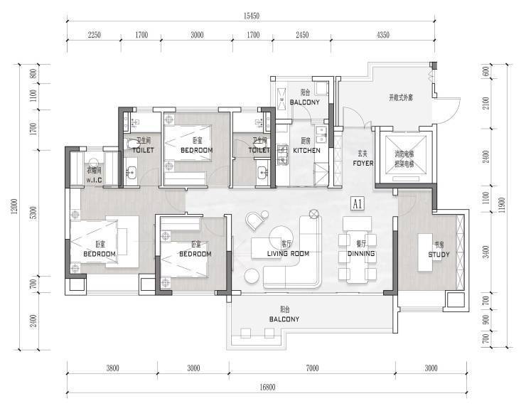
141㎡户型:
约16.8米面宽,四开间朝南
约11㎡独立入户光厅
超大方正生活阳台
约32㎡大平层级横方厅
L型阳台,约6㎡户外客厅
独立采光化妆+衣帽间
166㎡户型:
约17.35米极致南向面宽
约12㎡独立入户光厅
约21㎡超大甲板阳台
约39㎡LDKB大平层级横厅,南北通透
独立藏宝阁式衣帽间
中岛社交U型厨房
X灵动空间
199㎡户型(T1):
超尺度边厅带来270°环幕视野
光厅入户+入户花园
约17.5米L型阳台
1T1户私享门
五房三套房+总统套主卧
板块天花板户型,全城稀缺
成都【空港发展云玺观宸】销售中心电话:028-87788752(中介勿扰)
售楼处价格,户型图,地址,电话,样板房,周边配套,项目介绍
温馨提示:绝不收取任何费用,请提前1小时预约看房,以免带来不好的看房体验
声明:本文由入驻焦点开放平台的作者撰写,除焦点官方账号外,观点仅代表作者本人,不代表焦点立场。



