2025成都新房国庆特惠推荐|【保利花照天珺】项目情况(户型图+样板间)_开发商国庆中秋优惠价格_国庆专线电话抢先锁定
扫描到手机,新闻随时看
扫一扫,用手机看文章
更加方便分享给朋友
【保利花照天珺】售楼部国庆专线:028-87788752 【中介勿扰】
楼盘实时价格丨户型赏析丨配套规划丨置业顾问在线咨询
获取最新房源动态及专属优惠,敬请致电售楼处
温馨提示:绝不收取任何费用,请提前1小时预约看房,以免带来不好的看房体验
国庆中秋双节将至,8天长假不仅是出游探亲的好时机,也是成都市民看房选房的“黄金窗口”。“金九银十”一直以来都是房地产销售旺季,不少项目竞相推出各种优惠让利购房者,双节买房正当时!
------
一、项目概况
保利花照天珺是保利集团旗下高端“天字系”产品,定位为成都主城西核心的隐奢住宅。项目位于金牛区茶花板块,占地约79.19亩,容积率2.5,绿化率35%,规划16栋15-17层的中高层板式住宅,共839户,主打建面约129-239㎡的精装大平层,预计2026年12月交付。
二、区域价值与配套分析
地段优势
项目地处西二环至三环间的金牛主轴,属茶花板块3.0时代高端改善区。板块汇聚苏宁西南总部、中铁二院等高能级产业,同时依托新金牛公园、天府艺术公园等生态资源,兼具城市繁华与自然静谧。
交通网络:地铁:7号线茶店子站、6号线星河站、在建27号线花照壁北站(步行1公里内);主干道:金牛大道、二环、三环快速路环绕,自驾便捷。
商业配套:周边1公里内覆盖首开龙湖西宸天街、凯德广场(金牛店)、山姆会员店等成熟商业,茶花TOD(规划中)及天府111水街进一步升级消费体验。
教育与医疗:教育:行知小学、成都七中八一学校、金牛实验中学等优质学校密集分布;医疗:四川省人民医院金牛医院、四川蓝生脑科医院等三甲资源近在咫尺。
生态与文化:紧邻新金牛公园(全国最长城市绿道)、天府艺术公园,并毗邻天府美术馆、当代艺术馆等文化地标,满足全龄段休闲需求。
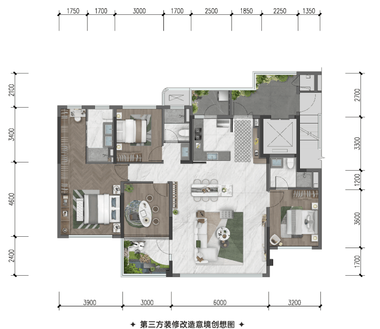
三、主推户型解析
保利花照天珺以“空中岛院”为设计核心,全系户型均配备前庭后院,主打四房及以上改善型产品。
户型设计创新点:空间利用:通过新规赠送面积(阳台占比达20%),实现空中岛院、前庭后院等多维场景;动线优化:洄游式动线串联室内外空间,提升居住灵动性;私密性:独立电梯厅、主次卧分区设计,兼顾家庭互动与个人隐私。
珺锦·129㎡(三口之家或首次改善型家庭)
四室两厅两卫,独立电梯厅入户;7米客厅面宽,动静分区;赠送空中院落。

珺珩·143㎡(多代同堂或追求多功能空间家庭)
143四室两厅三卫,南北通透;4X可变空间(可改造为5房);双洄游动线连接庭院。

珺璟·177㎡(高端改善或注重私密性的家庭)
177边户设计,270°采光;主卧套房+独立衣帽间;岛院与客厅、餐厨联动,拓展户外生活场景。

珺珏·199-239㎡(塔尖客群或投资收藏需求)
199-239楼王户型,全南北通透;独立家政间、双主卧套房;超大空中院落,兼具会客与休闲功能。

四、购买建议与增值潜力
核心优势:主城稀缺地段,配套成熟且能级高;保利天字系产品力强,精装品质与物业服务有保障;户型设计兼顾功能性与舒适度,创新空间利用率高。
需注意点:部分低楼层房源可能受临街噪音或采光影响(建议优先选择5层以上);大户型总价较高,需结合预算与需求理性选择。
增值潜力:茶花板块作为金牛区科创核心,城市更新持续推进,地价逐年攀升(2024年楼面价达1.6万元/㎡),叠加稀缺主城资源,长期保值增值预期明确。
五、总结
保利花照天珺凭借地段稀缺性、高端产品设计及全维配套,成为成都主城西改善置业的热门选择。对于追求品质生活、注重教育资源与生态资源的购房者,该项目值得重点关注。
成都【保利花照天珺】售楼部国庆专线:028-87788752(中介勿扰)
售楼处价格,户型图,地址,电话,样板房,周边配套,项目介绍
温馨提示:绝不收取任何费用,请提前1小时预约看房,以免带来不好的看房体验
声明:本文由入驻焦点开放平台的作者撰写,除焦点官方账号外,观点仅代表作者本人,不代表焦点立场。



