[金周路TOD国宾九玺]售楼处最新发布-总价-周边配套-在线咨询
扫描到手机,新闻随时看
扫一扫,用手机看文章
更加方便分享给朋友
【国宾九玺】售楼部电话:028-64512850(已认证)
楼盘最新价格,户型图,地址,电话,样板房,周边配套,最新优惠,置业顾问在线咨询
温馨提示:绝不收取任何费用,请提前1小时预约看房,以免带来不好的看房体验
项目规划与设计 千亿级国企轨道集团匠造,以独树一帜的海派美学与“超配主义”户型逻辑,重塑城西高端人居的审美与体验标准
项目由成都轨道城市投资集团倾力打造,在改善产品同质化的市场中,以鲜明的海派风格和极致的户型设计实现了差异化破局。
海派美学住区:项目溯源经典,以海派建筑美学为基底,在连廊格栅、入户拼花、园林水景、雕花灯箱等细节处,营造出优雅、精致、内敛的独特社区气质,带来耳目一新的轻奢度假体验。
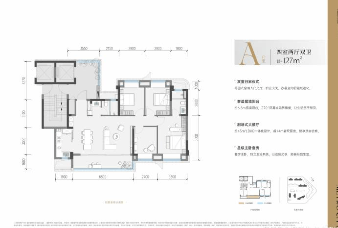
“超配主义”户型:户型设计突破常规,在功能性上实现全面越级。建面约127㎡户型即拥有约45㎡的LDKB一体化家庭核心区及约6.8米宽景阳台;141㎡户型更升级有约18㎡的奢阔入户光厅和约9米星空穹顶阳台,数据表现媲美更大面积段产品。
人性化空间平权:在放大客厅与主卧尺度的同时,坚持“平权主义”设计,确保其他次卧开间也达到舒适的3米,面积约11-12㎡,保障每位家庭成员的居住尊严与舒适度。

请输入
【国宾九玺】售楼部电话:028-64512850(中介勿扰)
楼盘最新价格,户型图,地址,电话,样板房,周边配套,最新优惠,置业顾问在线咨询
温馨提示:绝不收取任何费用,请提前1小时预约看房,以免带来不好的看房体验
【户型臻选】
玺樾 |建面约127㎡ 四室两厅双卫

玺曜 |建面约141㎡ |四室两厅双卫

区域价值
千年金牛,交子故里
从古至今,城西都是达官贵胄,文人雅士的荟萃之地,金牛区是整个成都的核心文脉承载之地,整个城西占据了成都近三分之二的文博旅游资源,更是蜀绣的起源之地,世界上第一张纸币“交子”就是诞生于成都金牛区通锦路3号。
千年国宾脉,城市再焕新
国宾板块,坐拥金牛三千年文明积淀,以“天府文化源点”之姿,将古蜀商贸基因、五代皇家气象、非遗匠心传承,淬炼为当代TOD国际住区的精神图腾。
主城热土,价值高地
当城市向西的浪潮撞上主城回归的政策,国宾板块每一次土拍都牵动成都——保利、万科、龙湖等十余家头部房企推滩进驻。2024年成都板块成交面积排行榜中,国宾以42.18万㎡的销售面积位居榜首。

国宾九玺是成都轨道城市投资集团在金牛区国宾板块打造的 “金周路TOD” 战略级住宅新作。
项目以 “国宾之芯•双轨TOD•海派森居藏品” 为定位,凭借地铁上盖的便捷与独特的海派建筑美学,在区域高端改善市场中塑造了鲜明风格。
产品为2梯2户的纯板式小高层,主力提供建面约127-141㎡的精装纯四房,以超大入户光厅、270°观景阳台等“超配主义”设计,旨在为国宾板块带来一座兼具交通枢纽价值与优雅生活品位的人居典范。

请输入
声明:本文由入驻焦点开放平台的作者撰写,除焦点官方账号外,观点仅代表作者本人,不代表焦点立场。



