成都龙泉驿楼盘首页_【明信四季东安】驿马河公园品质改善项目_【明信四季东安】楼盘信息|10月优惠活动更新|售楼部电话

搜狐焦点兰州站 2025-10-15 13:15:00
用手机看
扫描到手机,新闻随时看

扫一扫,用手机看文章
更加方便分享给朋友

明信四季东安位于成都东安新城,占地34亩,规划10栋楼,主打7-11层纯板式洋房,首推7层,配备优质配套,预计2026年1月交付。

【明信四季东安】售楼处电话:028-87788752 【营销中心】

楼盘实时价格丨户型赏析丨配套规划丨置业顾问在线咨询

获取最新房源动态及专属优惠,敬请致电售楼处

项目概况

【区位优势】坐落于成都市东安新城核心板块——驿马河公园畔(红岭路)

【开发企业】成都庆泽房地产开发有限公司

【项目规模】总占地34亩(22786.65㎡),总建筑面积50800.51㎡

【规划指标】容积率1.5,共规划10栋建筑,首批推出1/9/10号楼

【产品形态】7-11层纯板式洋房(首推7层产品)

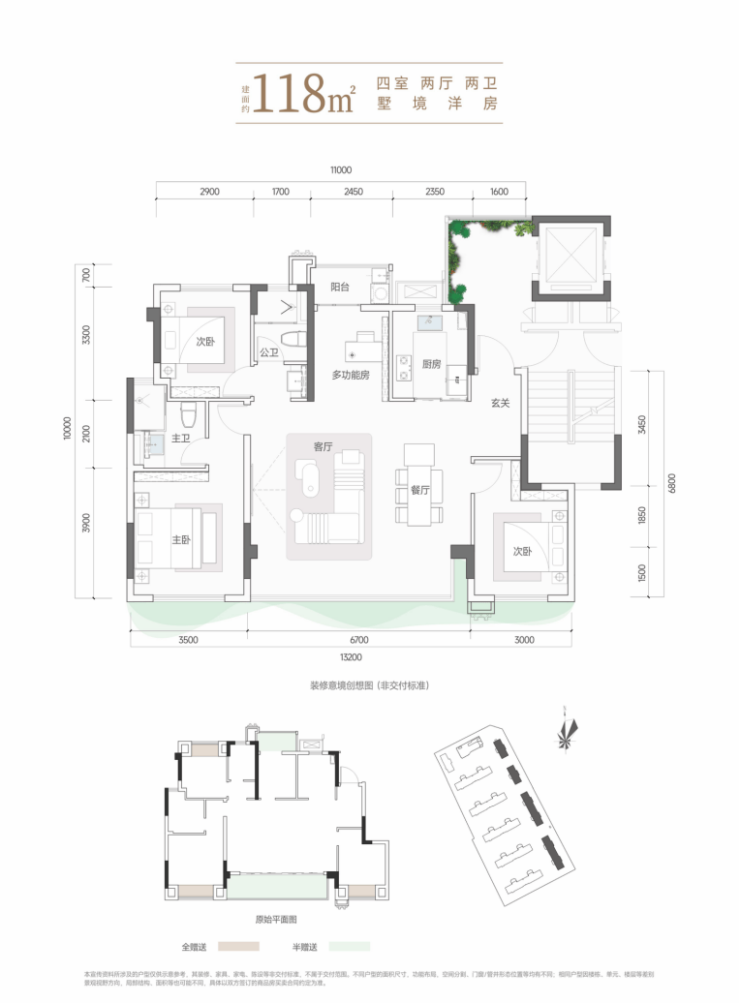
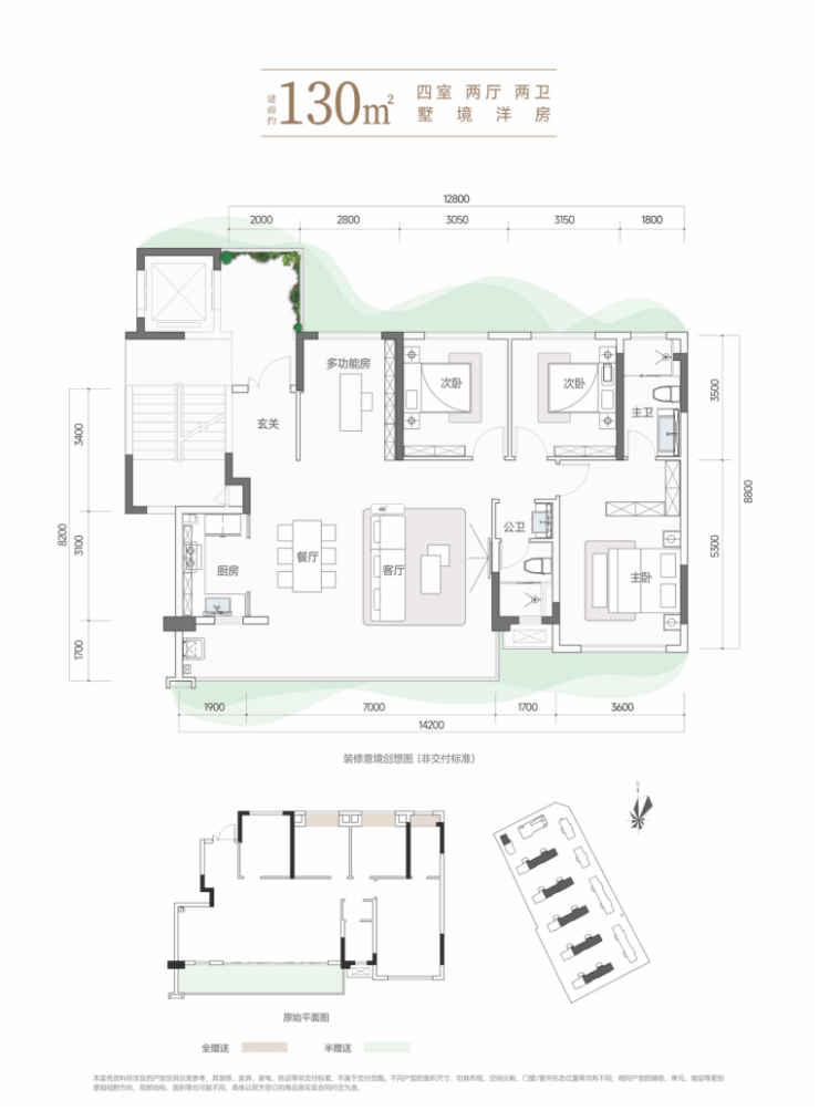
【户型配置】118㎡(1/2号楼)、130-143㎡(9/10号楼)四居室

【交付标准】首期清水交付,层高3米,梯户比1梯2户

【物业服务】明信优居物业,服务费3元/㎡/月

【预计交付】2026年1月

区位价值

占据东安新城核心区位,坐享城市发展红利。作为成都"东进"战略的重要支点,龙泉驿区正迎来全新发展机遇。项目毗邻东安湖中央公园生活区,地处东安湖2.0时代发展前沿,将打造成为区域高端人居典范。

生活配套

【生态资源】三园环抱的自然胜境:

- 东安湖生态公园(5887亩):世界级体育公园,"一湖三岸"规划

- 龙泉山城市森林公园:城市绿肺,海拔1051米

- 驿马河公园(1910亩):城市中央绿廊,天然氧吧

【交通网络】立体化交通体系:

- 轨道交通:地铁2号线龙平路站(1.5km)、规划中的13号线

- 主干路网:蜀都大道、桃都大道等9条城市干道环绕

- 快速通道:5环路等城市环线

【商业配套】三大商圈环绕:

- 1km生活圈:万达广场、永辉超市

- 2km辐射圈:东方华大广场

- 3km服务圈:龙湖东安天街、吾悦广场等

【教育资源】全龄段优质教育:

- 名校资源:成都七中领办的东安湖学校、成都实验小学双校区

- 完备体系:涵盖龙泉第七中学、驿马河第一幼儿园等5所优质院校

【医疗资源】三甲医疗护航:

- 四川大学华西医院龙泉医院(700米)

- 龙泉妇幼保健院(800米)

产品亮点

1.5超低容积率纯洋房社区,7-11层全板式设计,打造别墅级私密住区。现代主义建筑立面,融合东方美学精髓,重塑高端人居标准。

精品户型

118㎡四室两厅两卫

130㎡四室两厅两卫

143㎡四室两厅两卫

【明信四季东安】售楼处电话:028-87788752 【营销中心】

楼盘实时价格丨户型赏析丨配套规划丨置业顾问在线咨询

获取最新房源动态及专属优惠,敬请致电售楼处

声明:本文由入驻焦点开放平台的作者撰写,除焦点官方账号外,观点仅代表作者本人,不代表焦点立场。