【高投启鸣宸序】最新价格多少?_新川核心区11月人气项目_高投启鸣宸序楼盘11月成交价实时更新!
扫描到手机,新闻随时看
扫一扫,用手机看文章
更加方便分享给朋友
【高投 启鸣宸序&启鸣观樾】售楼部电话:028-87788752(中介勿扰)
楼盘最新价格,户型图,地址,电话,样板房,周边配套,一对一置业顾问在线咨询
温馨提示:绝不收取任何费用,请提前1小时预约看房,以免带来不好的看房体验
————
成都世运会火热绽放,同样绽放的还有成都楼市。
上半年成都楼市共成交17.6万套领跑全国;主城新房去化周期普遍在8个月以内;楼面地价从3万到4万只用了16天……各项亮眼数据展示着新一线成都回稳向好的傲绩。
2025下半年,楼市的炙热是否还将上演。
高投·启鸣双子以“核心地段+国企品质+大师设计+极致户型”四重优势,填补新川核心区高性价比改善空白,成为人才留驻高新区的理想人居范本。
——2025年高新必看项目,新川新作
——新川核心区国企迭新之作,重塑改善人居标杆

高投启鸣宸序&观樾【项目核心价值】
★ 【高新3.0 全城改善必看新川】上个十年看金融城,下个十年看新川。新川,全球卓越的未来城市样板间。
★ 【产城交融 · 距离世界最近的10平方公里】经国务院批准的全国首批国家级高新区;成都金融大脑经济脊梁。
★ 【865亩新川之心 · 黄金一公里极核区】新川正席一公里范围内在售项目稀缺,双子坐拥成熟资源高地,兑现度领先板块。
★ 【高投启鸣系 · 全T2板式四房 | 全系互动架空层 | 超高得房率 】国企品质背书,成都高投打造,高新区新规首作,得房率与产品力双重突破。
一、区位配套分析
交通便捷性
——地铁:距离6号线蒲草塘站约500米,1号线四河站约1.2公里。
——道路网:紧邻新川主干道新程大道,快速连接天府大道、梓州大道等城市动脉。
全维配套
——教育:启鸣宸序与上海师范大学成都海川学校(九年一贯制)仅一街之隔,周边另有金苹果锦城一中附属小学等优质资源。
——商业/生活:步行范围内涵盖新川邻里中心(含社区商业、农贸市场)、AI创新中心商业体。
——生态/产业:毗邻新川湿地公园、新川之心公园;周边聚集AI创新中心、5G智慧产业园等高新产业。
二、项目产品力解析
1. 设计美学
建筑立面:
香槟金+深空灰双色搭配,龙鳞纹发光塔冠、海宝蓝石材干挂基座,呈现轻奢地标感。
园林设计:
启鸣宸序:约80米月光轴串联13座主题花园,45米归家大门+仪式水景。
启鸣观樾:泰国VERSO HUA HIN酒店灵感浮岛中庭,热带植被+流水幕墙营造度假感。
三、“双子”项目信息概览
【启鸣宸序】
占地面积:30.2亩
绿地率:35%
总户数:383户
建筑类型:小高层
梯户比:2T2
装修情况:臻装大平层
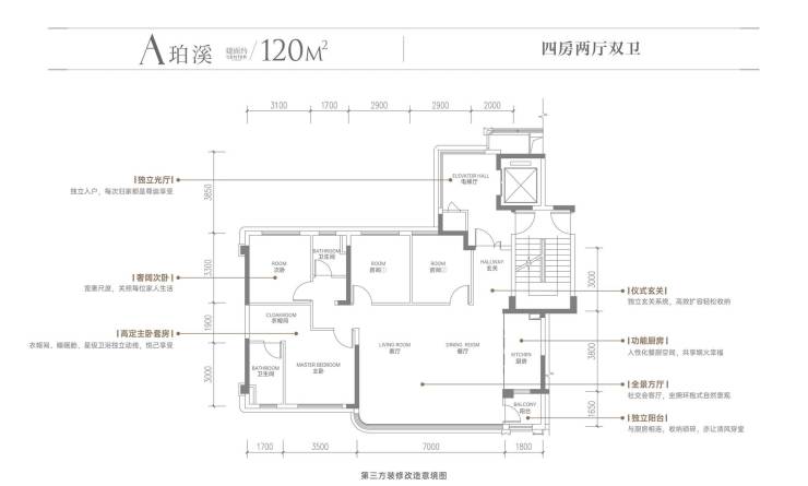
建面约120㎡ | 超配四房•光厅双厅双卫
建面约143㎡ | 高奢四房•光厅双厅三卫
【启鸣观樾】
占地面积:17亩
绿地率:35%
总户数:221户
建筑类型:小高层
梯户比:2T2
装修情况:臻装大平层
建面约120㎡ | 超配四房•光厅双厅双卫
建面约143㎡ | 高奢四房•光厅双厅三卫
四、户型鉴赏
————
【高投 启鸣宸序&启鸣观樾】售楼部电话:028-87788752(中介勿扰)
楼盘最新价格,户型图,地址,电话,样板房,周边配套,一对一置业顾问在线咨询
温馨提示:绝不收取任何费用,请提前1小时预约看房,以免带来不好的看房体验
声明:本文由入驻焦点开放平台的作者撰写,除焦点官方账号外,观点仅代表作者本人,不代表焦点立场。



