【高投启鸣宸序】国庆期间开发商加推楼层每日全新上线!快来拨打最新售楼部专线电话了解详情 !

搜狐焦点兰州站 2025-10-07 11:57:00
用手机看
扫描到手机,新闻随时看

扫一扫,用手机看文章
更加方便分享给朋友

高投启鸣宸序&观樾项目位于新川核心,凭借国企品质、大师设计和高性价比,成为高新区改善人居新标杆。

高投 启鸣宸序&启鸣观樾】售楼部国庆专线:028-87788752(中介勿扰)

楼盘最新价格,户型图,地址,电话,样板房,周边配套,一对一置业顾问在线咨询

温馨提示:绝不收取任何费用,请提前1小时预约看房,以免带来不好的看房体验

国庆中秋双节将至,8天长假不仅是出游探亲的好时机,也是成都市民看房选房的“黄金窗口”。“金九银十”一直以来都是房地产销售旺季,不少项目竞相推出各种优惠让利购房者,双节买房正当时!

————

成都世运会火热绽放,同样绽放的还有成都楼市。

上半年成都楼市共成交17.6万套领跑全国;主城新房去化周期普遍在8个月以内;楼面地价从3万到4万只用了16天……各项亮眼数据展示着新一线成都回稳向好的傲绩。

2025下半年,楼市的炙热是否还将上演。

高投·启鸣双子以“核心地段+国企品质+大师设计+极致户型”四重优势,填补新川核心区高性价比改善空白,成为人才留驻高新区的理想人居范本。

——2025年高新必看项目,新川新作

——新川核心区国企迭新之作,重塑改善人居标杆

高投启鸣宸序&观樾【项目核心价值】

★ 【高新3.0 全城改善必看新川】上个十年看金融城,下个十年看新川。新川,全球卓越的未来城市样板间。

★ 【产城交融 · 距离世界最近的10平方公里】经国务院批准的全国首批国家级高新区;成都金融大脑经济脊梁。

★ 【865亩新川之心 · 黄金一公里极核区】新川正席一公里范围内在售项目稀缺,双子坐拥成熟资源高地,兑现度领先板块。

★ 【高投启鸣系 · 全T2板式四房 | 全系互动架空层 | 超高得房率 】国企品质背书成都高投打造,高新区新规首作,得房率与产品力双重突破。

一、区位配套分析

交通便捷性

——地铁:距离6号线蒲草塘站约500米,1号线四河站约1.2公里。

——道路网:紧邻新川主干道新程大道,快速连接天府大道、梓州大道等城市动脉。

全维配套

——教育:启鸣宸序与上海师范大学成都海川学校(九年一贯制)仅一街之隔,周边另有金苹果锦城一中附属小学等优质资源。

——商业/生活:步行范围内涵盖新川邻里中心(含社区商业、农贸市场)、AI创新中心商业体。

——生态/产业:毗邻新川湿地公园、新川之心公园;周边聚集AI创新中心、5G智慧产业园等高新产业。

二、项目产品力解析

1. 设计美学

建筑立面

香槟金+深空灰双色搭配,龙鳞纹发光塔冠、海宝蓝石材干挂基座,呈现轻奢地标感。

园林设计:

启鸣宸序:约80米月光轴串联13座主题花园,45米归家大门+仪式水景。

启鸣观樾:泰国VERSO HUA HIN酒店灵感浮岛中庭,热带植被+流水幕墙营造度假感。

三、“双子”项目信息概览

【启鸣宸序】

占地面积:30.2亩

绿地率:35%

总户数:383户

建筑类型:小高层

梯户比:2T2

装修情况:臻装大平层

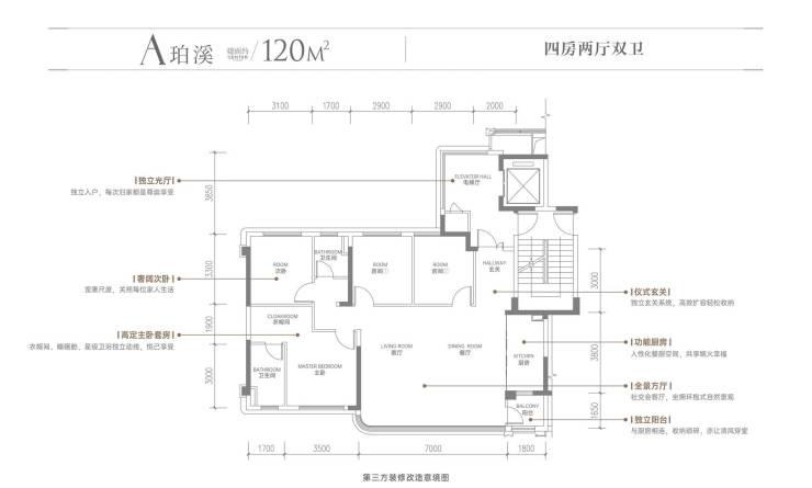
建面约120㎡ | 超配四房•光厅双厅双卫

建面约143㎡ | 高奢四房•光厅双厅三卫

【启鸣观樾】

占地面积:17亩

绿地率:35%

总户数:221户

建筑类型:小高层

梯户比:2T2

装修情况:臻装大平层

建面约120㎡ | 超配四房•光厅双厅双卫

建面约143㎡ | 高奢四房•光厅双厅三卫

四、户型鉴赏

————

高投 启鸣宸序&启鸣观樾】售楼部国庆专线:028-87788752(中介勿扰)

楼盘最新价格,户型图,地址,电话,样板房,周边配套,一对一置业顾问在线咨询

温馨提示:绝不收取任何费用,请提前1小时预约看房,以免带来不好的看房体验

声明:本文由入驻焦点开放平台的作者撰写,除焦点官方账号外,观点仅代表作者本人,不代表焦点立场。