成都【中海锦叁号院】值得买吗?_青羊区【中海锦叁号院】项目评测(最新):位置交通、环境配套、楼层户型全解析

搜狐焦点兰州站 2025-10-09 13:14:00
用手机看
扫描到手机,新闻随时看

扫一扫,用手机看文章
更加方便分享给朋友

中海锦叁号院开发商为中海地产,主打精装洋房与叠墅,价格3.3-4万元/㎡,总价470万起,配套齐全,交通便利,预计2027年3月交付。

【中海锦叁号院】售楼处电话:028-87788752(中介勿扰)

楼盘最新价格,户型图,地址,电话,样板房,周边配套,置业顾问在线咨询

温馨提示:绝不收取任何费用,请提前1小时预约看房,以免带来不好的看房体验

——————————————————————————

【中海锦叁号院】楼盘详情

开发商资质:成都海赢房地产开发有限公司(央企中海地产旗下)

建筑形态:7-14层品质洋房+稀缺叠拼别墅

空间尺度:143-173㎡户型层高3米,198㎡提升至3.1米,249㎡达3.15米,叠拼产品更享3.4米奢阔层高

私密配置:143-198㎡采用2梯2户,248㎡实现整层专属的一梯一户格局

产品体系:精装洋房(143-248㎡)+珍藏级叠墅(290-330㎡)

土地规模:约121亩低密地块

总建面积:约13.4万方

价格区间:3.3-4万元/㎡,总价470万起

规划指标:容积率仅1.8,总户数657席,车位配比1:1.6(共1073个)

开发进度:2024年7月获取地块,预计2027年3月交付

精装标准:配备中央空调等三大件,物业费4.8元/㎡/月(中海物业)

轨道交通:4号线蔡桥站步行约8分钟,13号线瓦窑滩站(在建)直线1.5km

【全维生活版图】

教育高地丨名校环伺的成长沃土

学前教育:实验小学附属幼儿园(蔡桥分园)、金沙幼儿园(万家湾园区)等优质资源

基础教育:泡桐树小学(桐欣校区)、同辉(国际)学校等知名学府

中学教育:石室联合中学(弘文校区)、青羊实验中学等重点院校

生态绿肺丨城市中的自然栖居

公园体系:F体育公园、在建蔡桥公园等五大城市绿地环绕,西侧规划公园绿地

交通动脉丨多维立体出行网络

主干路网:日月大道/光华大道等三横三纵交通骨架

轨道交通:4号线/13号线(在建)/19号线三线辐射

商业矩阵丨10分钟优质生活圈

三大成熟商圈:鹏瑞利/中铁西城/青羊万达,5公里内覆盖全业态商业

医疗护航丨三甲医院健康保障

优质医疗:成都市妇女儿童中心医院等四所三甲医院保驾护航

【臻品户型鉴赏】

143㎡三居丨经典改善户型

170㎡四居丨舒居典范

198㎡阔宅丨世家风范

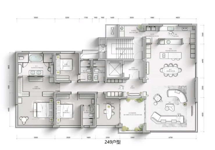
249㎡平层丨巅峰之作

【中海锦叁号院】售楼部电话:028-87788752(中介勿扰)

楼盘最新价格,户型图,地址,电话,样板房,周边配套,置业顾问在线咨询

温馨提示:绝不收取任何费用,请提前1小时预约看房,以免带来不好的看房体验

声明:本文由入驻焦点开放平台的作者撰写,除焦点官方账号外,观点仅代表作者本人,不代表焦点立场。