成都【麓湖生态城W2悦溪】值得买吗?_【麓湖生态城W2悦溪】最新成交价更新|户型图|容积率|位置交通|周边学校|售楼处电话
扫描到手机,新闻随时看
扫一扫,用手机看文章
更加方便分享给朋友
「麓湖生态城W2悦溪」售楼部电话:028-87788752(中介勿扰)
楼盘最新价格,户型图,地址,电话,样板房,周边配套,置业顾问在线咨询
温馨提示:绝不收取任何费用,请提前1小时预约看房,以免带来不好的看房体验
————————————————————————
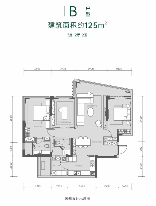
作为麓湖生态城W2地块的全新住宅组团,W2悦溪坐落于麓湖公园区核心位置,毗邻伊藤洋华堂北侧。项目主推110-160平方米精装住宅,以年轻化产品定位打造全新产品序列。
【核心优势】
区别于麓湖传统大户型产品,W2悦溪聚焦首改及改善型需求,推出111-141平方米主流户型,为区域注入全新活力。项目由14-21层小高层/高层组成,采用2梯4户设计,当前主推8号楼与9号楼。
【区位价值】
项目占据天府大道东侧黄金地段,距离地铁1号线红石公园站仅450米,创下麓湖住宅组团最近地铁距离纪录。作为城市南北动脉,1号线串联金融城、天府三街等核心商务区,为业主提供高效通勤选择。

【配套资源】
商业配套:伊藤洋华堂、6万方商业水街及特色风情商业街
生态资源:北接590亩天府森林公园,西邻2.3万方L5活力公园,南靠10万方红石公园
教育资源:划入天府新区优质C学区,涵盖麓湖小学等5所名校,周边分布天府八中、红石幼儿园等
【产品信息】
装修标准:精装交付
参考价格:上批次25528.99-34400.99元/㎡(2024年3月取证)
交付时间:预计2026年12月


「麓湖生态城W2悦溪」售楼部电话:028-87788752(中介勿扰)
楼盘最新价格,户型图,地址,电话,样板房,周边配套,置业顾问在线咨询
温馨提示:绝不收取任何费用,请提前1小时预约看房,以免带来不好的看房体验
声明:本文由入驻焦点开放平台的作者撰写,除焦点官方账号外,观点仅代表作者本人,不代表焦点立场。



