【幸福桥TOD幸福拾光】项目评测_幸福拾光最新动态|主城稀缺高端改善居住区|10月特价房|售楼处电话

搜狐焦点兰州站 2025-10-13 14:09:44
用手机看
扫描到手机,新闻随时看

扫一扫,用手机看文章
更加方便分享给朋友

幸福桥TOD·幸福拾光位于金牛区北部新城,是成都全优改善产品,地段优越,价格合理,交通便利,是购房理想选择。

【幸福桥TOD幸福拾光】销售中心电话:028-87788752(中介勿扰)

售楼处价格,户型图,地址,电话,样板房,周边配套,项目介绍

温馨提示:绝不收取任何费用,请提前1小时预约看房,以免带来不好的看房体验!

——————————————————————————————————

放眼成都,北部新城正是这样一个极具发展潜力的区域。

作为成都主城区之一的金牛区,是主城重要的产能聚集地,地区生产总值连续33年位居主城五区第一。(信息来源:封面新闻)

在北部新城的价值高地,谁可以实现成都人购房#既要又要还要#的需求?

答案一定是位于北部新城C位的幸福桥TOD·幸福拾光。

目前项目三期已开盘,作为值得下手的全优改善产品,重新定义了成都幸福生活的坐标。

就地段来说,幸福桥TOD·幸福拾光可谓天生C位。

金牛区 幸福桥TOD 清水准现房

在售面积:

125-135-143-180㎡(二期)

108-110-112-134-143㎡(三期)

单价15999起 中间楼层均价17500元

【项目基本信息】

开发商:成都轨道交通集团

物业公司:成都轨道万科物业有限公司

总占地700亩 /二期占地64亩/三期占地74亩

项目区位:金牛区北部新城-地铁5#幸福桥站

总层高:二期12-17F(一楼4.5米架空层无住宅)三期9-17F

容积率:2.0

绿化率:二期52% 三期35%

梯户比:二期2T2 三期 1T2户2T3户

物业费:3.8元

停车位:二期1:1.6三期1:1.2

交房时间:二期2024.8月三期2025.10月

总户数:二期624户三期503户

交付标准:清水洋房

公摊:二期17-20% 三期16-19%

交通:5号线幸福桥站50米,在建地铁27号线石门坎站300米

商业:汇融广场、龙湖锦宸天街、

大都会、福地广场

教育:机关三幼、第十六幼儿园(蜀道园区)

人民北路小学天北校区、成都实验小学

公园:凤凰山露天音乐公园、凤凰山体育公园

医疗:三甲医院西部战区总医院、金牛区中医医院(在建)

目前,幸福桥TOD·幸福拾光项目一期已实景交付,低密优越的中庭景观、优美挺拔的建筑立面等,兑现着所有关于家的美好。

据了解,项目近期已加推三期地块,该地块由14栋9F—17F小高层组成。项目整体采用围合式布局,以阔绰的楼栋间距,充分保证每一户的视野采光,增强居住的体验性。

对于主城购房者而言,幸福桥TOD·幸福拾光无疑是可以“闭眼入”的代表。

为什么这么说?

首先来看价格,当前5+2城区新房成交均价已达到26815元/㎡(数据来源:锐理数据),而幸福拾光三期最低单价仅约15999元/㎡起,放眼成都楼市,这样的价格极具竞争力。

其次,在价格因素之外,幸福桥TOD·幸福拾光以低密为法则,展示出高性价比的产品逻辑。购房者既能避免“刚需”尴尬的将就,也不需要承载高端改善高成本的压力,堪称区域的“性价比王者”。

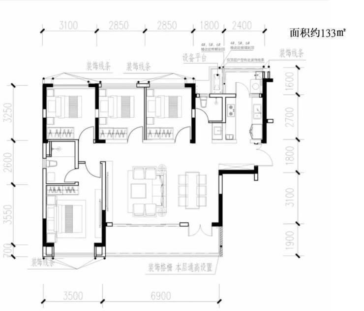
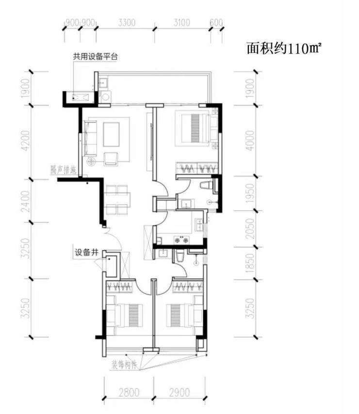
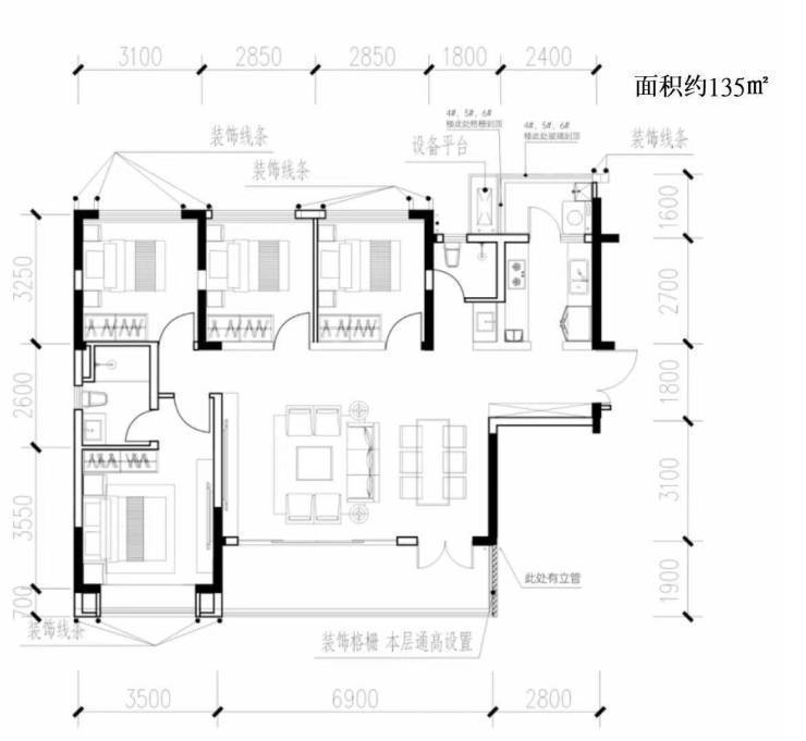
【在售户型】

【幸福桥TOD幸福拾光】销售中心电话:028-87788752(中介勿扰)

售楼处价格,户型图,地址,电话,样板房,周边配套,项目介绍

温馨提示:绝不收取任何费用,请提前1小时预约看房,以免带来不好的看房体验!

免责声明:

以上内容仅作为邀约邀请,涉及的图片为部分区域实拍图和美学畅想图,具体内容请以现场公示和合同约定为准;本文部分资料、部分图片来源于网络,如有侵权请联系我们删除。

声明:本文由入驻焦点开放平台的作者撰写,除焦点官方账号外,观点仅代表作者本人,不代表焦点立场。