金牛区中国电建国宾华曦府值得买吗?_国宾华曦府10月房价更新|最新楼层户型查询|区位规划详解|售楼部电话
扫描到手机,新闻随时看
扫一扫,用手机看文章
更加方便分享给朋友
【电建国宾华曦府】售楼处电话:028-87788752 【中介勿扰】
楼盘实时价格丨户型赏析丨配套规划丨置业顾问在线咨询
温馨提示:绝不收取任何费用,请提前1小时预约看房,以免带来不好的看房体验
————
西三环·成外旁·百亩低密洋房社区,建面约110-143㎡国宾板块臻品大宅
核心规划指标
【项目规模】占地约92亩,总规划19栋建筑
【居住密度】容积率约2.0,绿化率达35%
【产品配置】共计945户,主力户型建面约110-143㎡
在售房源详情
14号楼:110㎡三居,1梯2户设计
12号楼:130㎡四居,2梯2户格局
16号楼:143㎡四居(即将售罄)
19号楼:143㎡四居(现房充足)
【精装标准】3299元/㎡品质装修
【参考价格】25000元/㎡起
【交付时间】预计2026年9月
匠心户型解析
曦光·110㎡三室两厅两卫
· 约6㎡全明入户玄关,彰显归家仪式感
· 约45㎡餐客厨一体化空间,打造家庭社交中心
· 22㎡主卧套房配置独立卫浴及衣帽间
· 11㎡南向观景阳台,尽揽四季风光
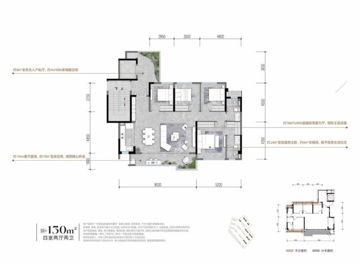
煦光·130㎡四室两厅两卫
· 8㎡入户玄关搭配4㎡储物空间
· 50㎡超大横厅,满足品质生活需求
· 24㎡星级主卧套房,配备6㎡独立衣帽间
· 14米南向采光面,10㎡多功能空间
曜光·143㎡四室两厅两卫
· 58㎡超大客厅,打造家庭社交场域
· 16㎡环岛式厨房,优化烹饪动线
· 37㎡奢阔主卧,含14㎡独立衣帽间
· 14㎡双联阳台,实现室内外自然衔接
项目核心价值
归家礼序体系
· 神鸟图腾水景:12道光影水柱演绎太阳神鸟文化
· 7米挑高府门:76米宽幅门庭,采用意大利普拉达绿奢石
· 星空主题大堂:千颗星光打造梦幻归家体验
· 四水归堂中庭:传统风水智慧与现代景观的完美融合
品质生活场景
· 单元入户花园:双侧叠水溪景与川蜀纹样地雕
· 5.4米挑高大堂:全玻璃幕墙搭配天然石材铺装
品牌实力
中国电建集团作为国务院国资委直属央企,是全球清洁能源建设领军企业。旗下电建地产具备国家一级开发资质,位列16家央企地产开发平台。
区位优势
城市发展规划
· 地处金牛国宾板块核心,"中优"战略重点发展区域
· 千亿级高科产业聚集,推动区域价值持续攀升
全维生活配套
【教育】茶店子小学金樽校区、成都外国语学校等优质教育资源
【交通】"两横三纵"路网+4条地铁线路(含规划中9/12号线)
【医疗】3所三甲医院环绕,四川省第五人民医院(2026年建成)
【商业】2公里内四大商业综合体,4公里可达龙湖西宸天街
【生态】六大公园环伺,包括天府艺术公园等城市绿肺
【电建国宾华曦府】售楼处电话:028-87788752 【中介勿扰】
楼盘实时价格丨户型赏析丨配套规划丨置业顾问在线咨询
获取最新房源动态及专属优惠,敬请致电售楼处
温馨提示:绝不收取任何费用,请提前1小时预约看房,以免带来不好的看房体验
声明:本文由入驻焦点开放平台的作者撰写,除焦点官方账号外,观点仅代表作者本人,不代表焦点立场。



