成都新房【中海天府麓湾】楼盘全面解析_地铁青岛路站【中海天府麓湾】售楼处联系电话、在售户型图展示、最新成交价参考及区位配套解读
扫描到手机,新闻随时看
扫一扫,用手机看文章
更加方便分享给朋友
【中海天府麓湾】售楼部电话:028-87788752(中介勿扰)
楼盘最新价格,户型图,地址,电话,样板房,周边配套,置业顾问在线咨询
温馨提示:绝不收取任何费用,请提前1小时预约看房,以免带来不好的看房体验
————————————————————————————
【中海天府麓湾】楼盘详情
开发商:中海地产(世界500强央企)
占地面积:约58亩(约3.87万平方米)
建筑形态:15-18层小高层
梯户配置:2梯4户黄金配比
物业管理:中海物业(国家一级资质)
容积率:约2.0(低密社区)
绿化率:35%
车位配比:1:1.3(共912个)
物业费:3.6元/㎡/月
交付标准:全屋精装(含新风系统/地暖/中央空调)
在售房源:
95㎡三房双卫(仅余底层及顶层)
122㎡三+一房双卫(主力在售)
132㎡四房双卫(即将加推)
价格区间:20000-23000元/㎡
交付状态:现房即买即住
立体交通网络
路网体系:"四横四纵"主干道环绕(沈阳路/青岛路/武汉路/麓山大道+天府大道/梓州大道/益州大道/蓉遵高速)
轨道交通:双地铁覆盖(6号线青岛路站600米+规划26号线)
TOD规划:昌公堰TOD(在建)+青岛路TOD(2025年建成)
全维生活配套
商业集群:3公里内汇聚天府大悦城、和悦广场、麓湖水镇(在建伊藤旗舰店)
医疗资源:华西天府医院(三甲)、省第二人民医院、天府新区人民医院(在建)
教育体系:香山K12教育带(含成都市实验外国语学校、天府三中等名校)
生态矩阵:五大公园环伺(3450亩天府公园+3800亩麓溪河公园等)

产品亮点
低密生态社区——2.0容积率打造稀缺低密住区,楼间距达40-50米,营造静谧宜居环境
创新风车楼型——采用点式布局设计,实现270°景观视野,保障户型间零对视,私密性优越
双岛园林体系——约10000㎡双中庭景观,设置全龄活动区、环形慢跑道、多功能会客空间
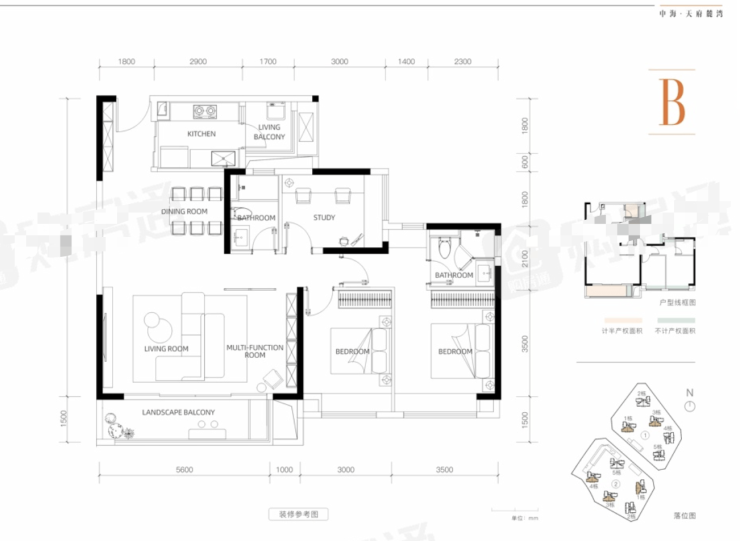
精品户型解析
95㎡全能三居——三室两厅双卫,南向三面宽,U型厨房设计
132㎡楼王户型——四室两厅双卫,LDK一体化设计,主卧套房配置
122㎡成长型住宅——3+1房可变空间,双阳台设计,动静分区明确

【中海天府麓湾】售楼部电话:028-87788752(中介勿扰)
楼盘最新价格,户型图,地址,电话,样板房,周边配套,置业顾问在线咨询
温馨提示:绝不收取任何费用,请提前1小时预约看房,以免带来不好的看房体验
声明:本文由入驻焦点开放平台的作者撰写,除焦点官方账号外,观点仅代表作者本人,不代表焦点立场。



