2026毕节避暑新房推荐_【中轩杜鹃花城】售楼处电话_毕节【中轩杜鹃花城】房价_户型_楼盘介绍
扫描到手机,新闻随时看
扫一扫,用手机看文章
更加方便分享给朋友
毕节避暑新房【中轩杜鹃花城】售楼处官方新增热线:400-991-6563(中介勿扰)
楼盘最新价格,户型图,地址,电话,样板房,周边配套,项目介绍
温馨提示:绝不收取任何费用,请提前1小时预约看房,以免带来不好的看房体验
杜鹃花城

对项目感兴趣,可拨打下方电话联系中轩杜鹃花城云栖台【中轩杜鹃花城】售楼处官方新增热线:400-991-6563(中介勿扰)

项目基础信息
【项目地址】:贵州毕节百里杜鹃风景区旁
【项目总占地】:约19322亩;建设用地约403448亩
【一期容积率】:1.14
【总户数】:3749户
【交房时间】:洋房 洋房2025年6月

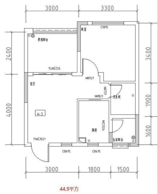
【项目产品】 ①花园洋房:2梯6户 建面31m²-44.9m²-49m²-69m²;实得约56-80m²


毕节避暑新房【中轩杜鹃花城】售楼处官方新增热线:400-991-6563(中介勿扰)
楼盘最新价格,户型图,地址,电话,样板房,周边配套,项目介绍

毕节避暑新房【中轩杜鹃花城】售楼处官方新增热线:400-991-6563(中介勿扰)
楼盘最新价格,户型图,地址,电话,样板房,周边配套,项目介绍

销售均价4500~5700
中轩·杜鹃花城项目占地面积600亩,
总建筑面积约40万平米,

整个项目按“国家4A级景区标准”打造,共分为三期开发,主要以电梯花园洋房为主。电梯花园洋房,房子长在花海里。
小区按照文化旅游项目特有的健身、养身、休闲、娱乐、聚会、社交、文化创意等内容,规划有完善的旅游度假休闲配套设施。如网球场、健身会所、社区医疗服务中心、太极馆、瑜珈馆、营养自助餐厅、高端茶楼、咖啡厅、酒吧、KTV、精品酒店、特色客栈等

交通便利: 航空直达 毕节【飞雄机场】 贵阳【龙洞堡机场】 遵义【茅台机场】 高铁便利 川渝-2小时生活圈大方高铁站-约25分钟车程 高速通达 项目离高速口5分钟车程

毕节避暑新房【中轩杜鹃花城】售楼处官方新增热线:400-991-6563(中介勿扰)
楼盘最新价格,户型图,地址,电话,样板房,周边配套,项目介绍
温馨提示:绝不收取任何费用,请提前1小时预约看房,以免带来不好的看房体验
声明:本文由入驻焦点开放平台的作者撰写,除焦点官方账号外,观点仅代表作者本人,不代表焦点立场。



